Heather Yates / Yates Real Estate Ltd

109 Amery Crescent , House for sale in NONE Crossfield , Alberta , T0M0S0

 MLS® # A2263366

2 bedrooms

2 bathrooms

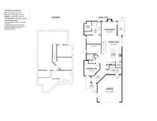
1,417 sqft

Sign up to View

Days on Market

Welcome to a home where thoughtful craftsmanship, timeless finishes, and intelligent design come together in perfect harmony. Located in a peaceful, family-friendly neighbourhood, this stunning McKee-built bungalow offers over 1,400 sq ft of main floor living and a partially finished basement that’s already prepped with drywall, luxury vinyl plank flooring, and Dricore subflooring—ready for your finishing touches. Step inside and be greeted by soaring 10’ ceilings and engineered hand-scraped hardwood floors...

Read More

Essential Information

  • MLS® #
    A2263366
  • Full Bathrooms
    2
  • Year Built
    2016
  • Property Type
    Detached
  • Property Style
    Bungalow
  • MLS® #
    A2263366
  • Full Bathrooms
    2
  • Year Built
    2016
  • Property Type
    Detached
  • Property Style
    Bungalow
  • MLS® #
    A2263366
  • Full Bathrooms
    2
  • Year Built
    2016
  • Property Type
    Detached
  • Property Style
    Bungalow

Community Information

  • Postal Code
    T0M0S0
  • Postal Code
    T0M0S0
  • Postal Code
    T0M0S0

Services & Amenities

  • Parking
    Double Garage Attached
    Garage Door Opener
    Insulated
  • Parking
    Double Garage Attached, Garage Door Opener, Insulated
  • Parking
    Double Garage Attached
    Garage Door Opener
    Insulated

Interior

  • Floor Finish
    Carpet
    Ceramic Tile
    Hardwood
    Vinyl Plank
  • Heating
    Forced Air
  • Interior Feature
    Ceiling Fan(s)
    Closet Organizers
    High Ceilings
    No Smoking Home
    Vinyl Windows
    Walk-In Closet(s)
  • Floor Finish
    Carpet, Ceramic Tile, Hardwood, Vinyl Plank
  • Heating
    Forced Air
  • Interior Feature
    Ceiling Fan(s), Closet Organizers, High Ceilings, No Smoking Home, Vinyl Windows, Walk-In Closet(s)
  • Floor Finish
    Carpet
    Ceramic Tile
    Hardwood
    Vinyl Plank
  • Heating
    Forced Air
  • Interior Feature
    Ceiling Fan(s)
    Closet Organizers
    High Ceilings
    No Smoking Home
    Vinyl Windows
    Walk-In Closet(s)

Exterior

  • Lot/Exterior Features
    Private Yard
  • Roof
    Asphalt Shingle
  • Construction
    Cement Fiber Board
    Wood Frame
  • Lot/Exterior Features
    Private Yard
  • Roof
    Asphalt Shingle
  • Construction
    Cement Fiber Board, Wood Frame
  • Lot/Exterior Features
    Private Yard
  • Roof
    Asphalt Shingle
  • Construction
    Cement Fiber Board
    Wood Frame

Additional Details

  • Zoning
    R-1B
  • Zoning
    R-1B
  • Zoning
    R-1B

$599,900

109 Amery Crescent

Schedule Tour
Contact Agent

$2732/month
Est. Monthly Payment
$
$
%
Learn More